物件を
条件から探す
物件を
リクエストする
運営会社情報
について
TOP
>
貸事務所
>
一棟貸し
>
10781 中筋日延テナント(和歌山市中筋日延)
10781 中筋日延テナント(和歌山市中筋日延)
賃料
12万円
敷金
12万円
礼金
12万円
面積
71.76 m²
所在地
和歌山県和歌山市中筋日延
交通
バス(和歌山バス那賀池の川停 停歩1分)
物件写真
詳細情報
賃料
12万円
共益費・管理費
円
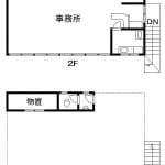
間取り詳細
敷金
12万円
礼金
12万円
保証金
ヶ月
解約引き
ヶ月
面積
71.76m²
建物階数
地上2階
部屋階数
1-2階
駐車場
0円 空有 7台分駐車スペースあり
取引態様
引渡/入居時期
即時
現況
空家
設備・条件
トイレ専用 駐車場有
当社コメント
7台分駐車スペース付き。
保証会社加入要(実費)
関連物件
※物件掲載内容と現況に相違がある場合は現況を優先と致します。
物件お問い合わせフォーム
お名前
※必須
メールアドレス
※必須
TEL
※必須
物件指定
お問い合わせ内容
内見希望
詳細確認
比較物件の紹介希望
その他
ご住所
ご希望の連絡方法
電話
メール
詳しいご要望
Fudousan Plugin Ver.1.7.3