・店舗・事務所併用
・住所:海南市日方670-3
・保証会社加入要(実費)
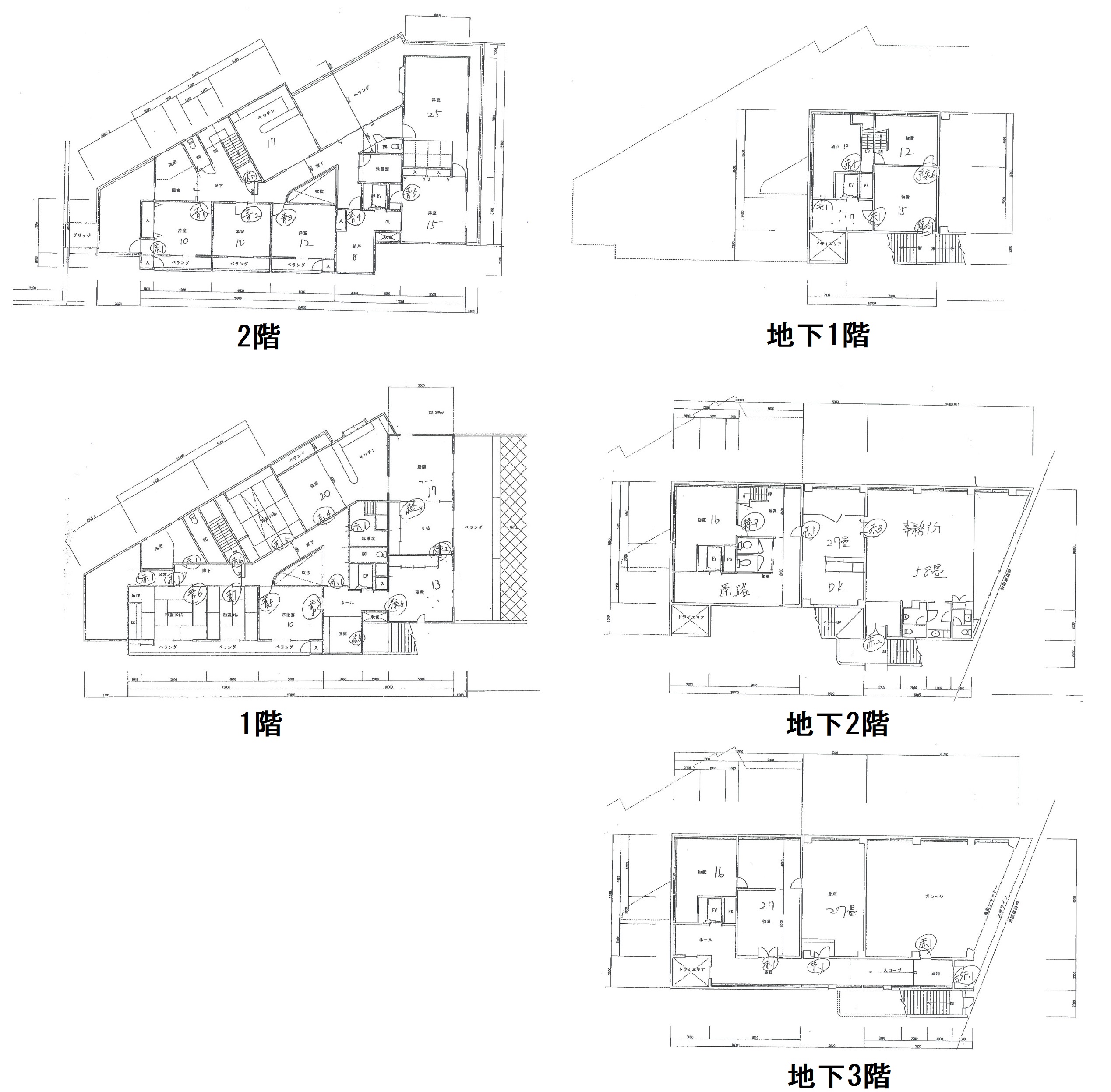
【1階 322.33㎡】和10帖、和10帖、和8帖、洋17帖、洋13帖、洋10帖、洋8帖、LDK20帖
【2階 261.21㎡】洋25帖、洋15帖、洋12帖、洋10帖、洋10帖、LDK17帖
【地下1階 85.24㎡】物置15帖、物置12帖、納戸10帖
【地下2階 240.18㎡】事務所58帖、DK27帖、物置16帖
【地下3階 260.04㎡】倉庫27帖、物置27帖、物置16帖
・敷地外駐車場15台(青空)月額50,000円 礼金100,000円で利用可能。
































